Helsinki Drift
Guggenheim Helsinki Proposal
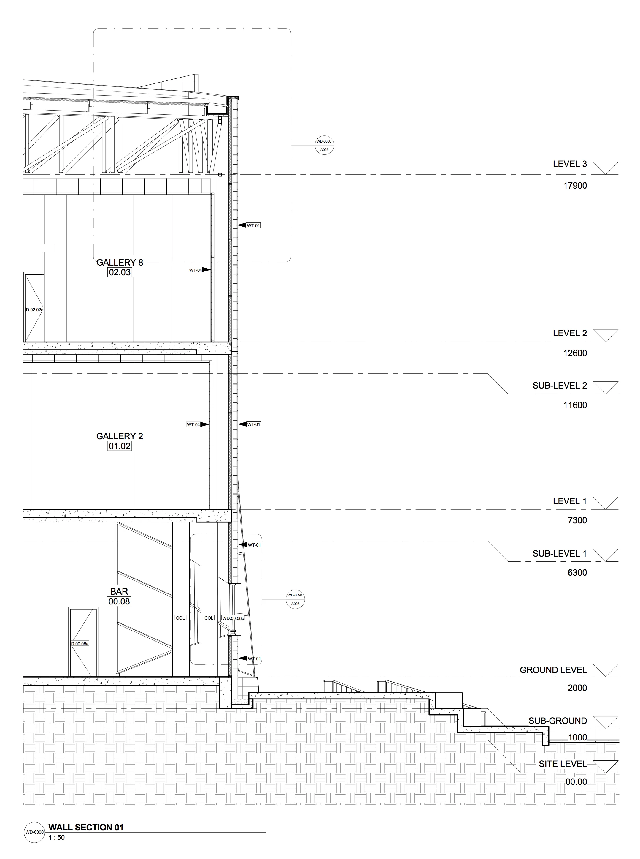
This proposal served as a competition entry for the Helsinki Guggenheim art gallery project, and was realised through an extensive documentation set. The gallery is clad in an experimental sandstone hanging system, and its form is derived from broken ice floes, which was inspired by the icebreaker ships historically manufactured in Helsinki.
